NLE®.LHO/︎︎︎21-23
Amenidades, Real Estate
Monterrey, México
→CPT-SD-DD-CD
2021-2023
Monterrey, México
→CPT-SD-DD-CD
2021-2023
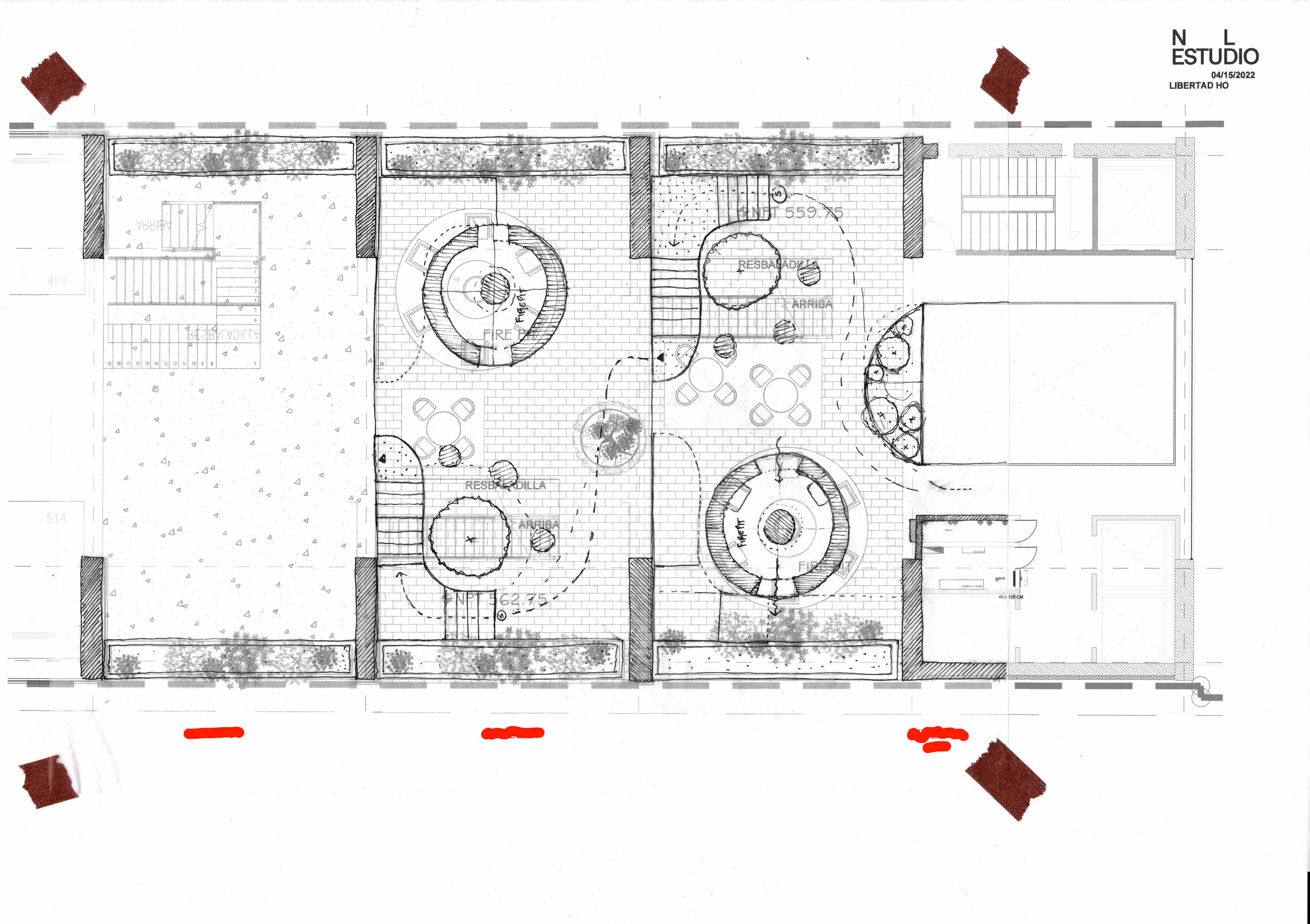
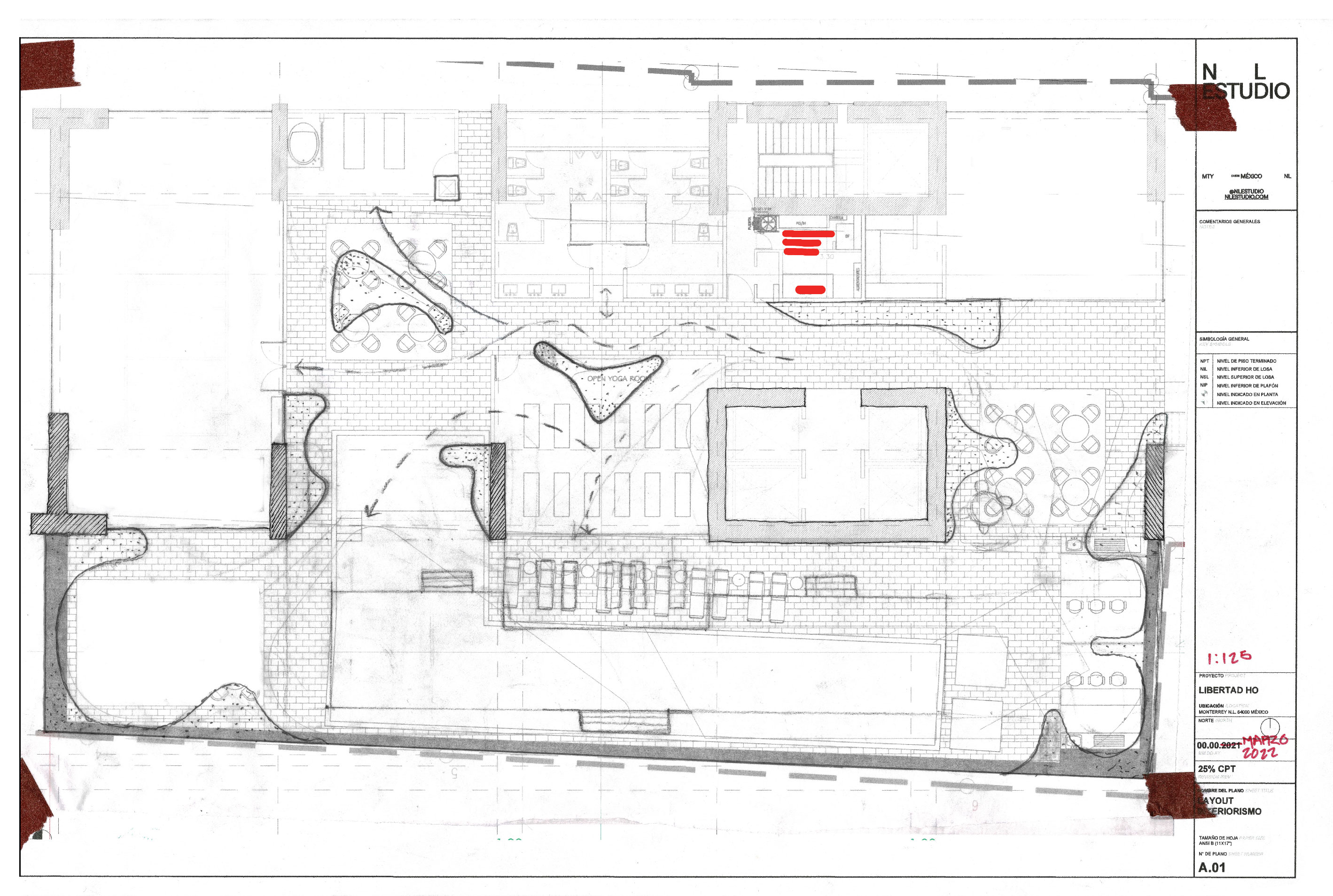
Amenidades Libertad HO.
Libertad HO, es un edificio desarrollado por Community Factory, con Arquitectura de Vidal Arquitectos y con Arquitectura de espacios interiores y diseño de espacios públicos por NL Estudio. Proyecto en etapa de documentación (CDs) y Construcción (Mayo 2023)
Arquitectura de interior: NL Estudio®
Arquitectura: Vidal Arquitectos®
Desarrollador: Community Factory®
Gerencia de proyecto: Be-Live®
Marca: The Fanatic Maker Company®
Libertad HO, es un edificio desarrollado por Community Factory, con Arquitectura de Vidal Arquitectos y con Arquitectura de espacios interiores y diseño de espacios públicos por NL Estudio. Proyecto en etapa de documentación (CDs) y Construcción (Mayo 2023)
Arquitectura de interior: NL Estudio®
Arquitectura: Vidal Arquitectos®
Desarrollador: Community Factory®
Gerencia de proyecto: Be-Live®
Marca: The Fanatic Maker Company®

PROCESO︎︎︎





























